Maison Liffré 7 pièces 129 m2 - réf. 5155-1LCO

Achat maison 7 pièces - 129 m²

Liffré (35340)
379 200 €
réf. 5155-1LCO

Présentation du bien

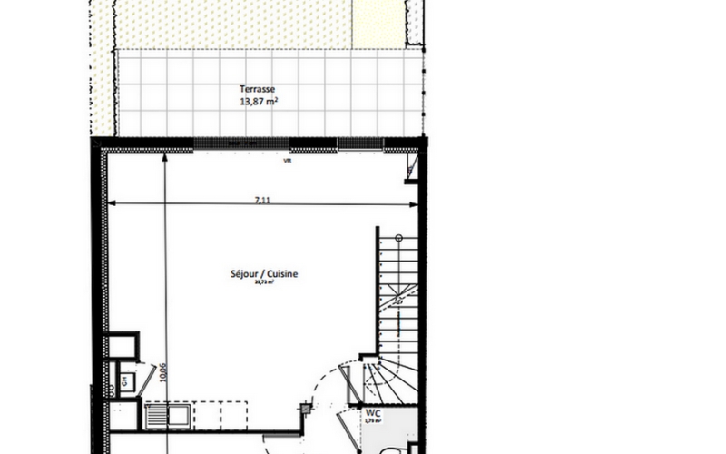
Maison neuve de 129 m² en plein coeur de Liffré.

Le Cabinet Rolland et Girot vous présente cette magnifique maison neuve de 90 m² avec accès de plain-pied, offrant un cadre de vie idéal.

Elle se compose d'une belle pièce de vie lumineuse, avec un accès direct à une terrasse et un jardin clôturé, parfaits pour profiter des journées ensoleillées. Un placard sous l'escalier et un dégagement menant à une chambre, salle d'eau, ainsi qu'un WC séparé, viennent compléter ce niveau.

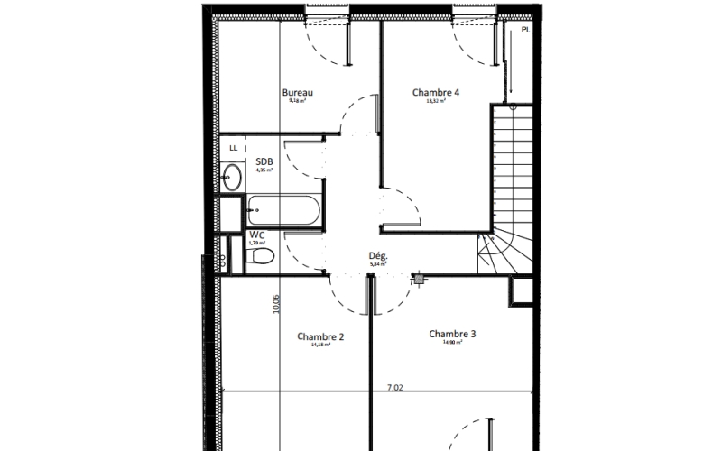
A l'étage, vous découvrirez un dégagement avec placard aménagé, trois chambres spacieuses, dont une avec placard intégré. Une salle de bain moderne et un WC séparé sont également présents.

Ce bien dispose de deux places de stationnement en sous-sol sécurisé, offrant ainsi un confort supplémentaire.

A visiter sans tarder !

Votre conseiller immobilier : Lionel COLLIN.

Le Cabinet Rolland et Girot, c'est 7 agences de proximité : Liffré, Saint-Aubin-d'Aubigné, Acigné, Noyal-sur-Vilaine, Saint-Aubin-du-Cormier, Betton et La Bouëxière. Fort de 19 ans d'expérience, le Cabinet s'engage à vos côtés dans votre projet immobilier en mettant à votre disposition son professionnalisme, ses compétences et son dynamisme !
(4.00 % honoraires TTC à la charge de l'acquéreur.)

129 m² 
7 pièces
5 chambres
1 salle(s) de bain

Informations complémentaires

Type de transaction : 
Vente
Type de bien : 
Maison
Année d'achèvement : 
2023
Nombre de pièces : 
7
Etage : 
1
Nombre de chambres : 
5
Surface : 
129,00 m²
Surface du séjour : 
0,00 m²
Nombre de salles de bain : 
1
Ville : 
Liffré
Type de chauffage : 
Individuel, Gazdeville, Radiateur
Type de cuisine
Aménagée / Équipée
Information non contractuelles
* Surface approximative

Dépenses énergétiques

consommation (énergie primaire) émissions 58 KWh/m² par an kgCO₂/m² par an logement très performant logement extrêmement peu performant DPE_ DPE_
58 kg CO₂/m² par an A B C D E F G emissions de CO₂ très importantes peu d'émission de CO₂ * Dont émissions de gaz à effet de serre

Localisation du bien

Simulation financière

Montant de votre prêt Montant de votre prêt
Durée de votre prêt Durée du prêt
Taux d'intérêt avant négociation Taux d'intérêts
Montant de votre prêt
Durée du prêt
Mensualités

 Recharger Contactez-nous

Agence de Liffré
56, Rue de Rennes
35340
Liffré
02.99.68.55.55